Sparen Sie Zeit 08414936508

Ferienwohnung | Italien, Toskana, Nord Toskana - Landesinneres (Florenz) Ferienwohnung Carraia Toskana Weingut Fattoria Fondacio mit Pool

  • Personen
  • 2 (+2)
  • Schlafzimmer
  • 1
  • Badezimmer
  • 1
  • EG
  • 45 m²

Beschreibung

Ferienwohnung Carraia für 2-4 Personen mit überdachter Terrasse nach Süden
Toskana Weingut Fondacio mit Panorama-Pool (14 m x 7 m)
6 zauberhafte Ferienwohnungen
Florenz - Pisa -Vinci

Der malerisch in den eigenen Weinbergen gelegene Agriturismo Fattoria Fondacio hat schon im Jahr 2004 auf biodynamischen Weinbau umgestellt. Mit Liebe zum Detail und auserlesenem Geschmack wurden damals auch die Ferienwohnungen restauriert, wobei der toskanische Charme erhalten blieb: die Möbel aus massivem Holz, glasierte Cotto-Fliesen, hochwertige Leinenstoffe.

Der Pool liegt teils unter Schatten spendenden Bäumen inmitten eines üppig blühenden Gartens mit Blick auf die eigenen Weinberge und Olivenhaine, auf das Städtchen Vinci zur einen Seite hin und auf die Apuanischen Alpen im Westen.

Wer sich von diesem paradiesischen Idyll losreißen kann, nutzt die Nähe zu Florenz, Lucca und Pisa, am besten mit dem Zug, denn die Verbindung zu allen drei Städten ist hervorragend. Nicht verpassen sollte man einen Besuch im Leonardo-Da-Vinci-Museum, in dem die sensationellen Erfindungen des Universalgenies in Form von Holzmodellen dargestellt sind.

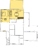
Die Ferienwohnung Carraia liegt im Erdgeschoss. Die Süd-Terrasse mit herrlichem Ausblick wird von einer Glyzinie beschattet. Der Wohnraum ist mit einer hochwertigen Holzküche (mit kleinem Backofen und Herd mit 2 Kochstellen), Esstisch und passenden Holzstühlen eingerichtet. Eine breite Bogentüre führt hinaus auf die Terrasse. Das Schlafzimmer ist mit einem romantischen Doppelbett möbliert, das blaue Badezimmer ist mit einer Dusche ausgestattet. Die Wohnung ist groß genug für 2 Zustellbetten.

Grundrissbilder

  • Ferienwohnung Carraia Toskana Weingut Fattoria Fondacio mit Pool

Ausstattungsmerkmale

Allgemein
  • Familien-Urlaub
  • Haustier auf Anfrage erlaubt
  • Haustierfreundlich
  • Heizung
  • Kinderfreundlich
  • Panoramablick
  • Parkplatz
  • Urlaub mit Baby
  • Waschmaschine (gemeinsam)
  • WLAN
  • WLAN Internet in Wohnung
Aussenbereich
  • eigene überdachte Terrasse
  • Gartengrill
  • Pool
Badezimmer
  • Badezimmer mit Dusche und WC
Essen
  • Verkauf von biodynamisch erzeugtem Wein und Olivenöl
  • Wein- und Olivenölverkostung
Küche
  • Herd
  • Herd mit 2 Kochstellen
  • kleiner Backofen
  • Küche integriert in Wohnraum
  • Kühlschrank mit Gefrierfach
  • Toaster
  • Wasserkocher
Schlafzimmer
  • 1 Schlafzimmer mit 1 Doppelbett
  • Zustellbett
Umgebung
  • Fahrradtouren möglich
  • Golf Club Bellosguardo
  • Golfclub Montecatini Terme
  • Golfplatz
  • Golfplatz Montelupo
  • Reiten
  • Wandern
  • Wellness-Center Grotta Giusti (ermäßigter Eintritt)
Wohnzimmer
  • Wohnraum mit Essplatz und integrierter Küche
  • Zustellbett

Lage

In der Umgebung
Entfernung nächste Geschäfte
2 km
Entfernung nächste Trattoria / Restaurant
3 km
Entfernung zum nächsten Golf Platz
16 km
Entfernung zur nächsten Ortschaft
2 km
Entfernung zur nächsten Reitmöglichkeit
3 km

Mietpreise

Zeitraum
Mindestübernachtungen
Preis pro Nacht
Endreinigung
Saison A 11.04.2026 - 23.05.2026
4
68,57 €
45,00 €
Anreise nicht möglich am Montag, Donnerstag, Freitag, Sonntag
Abreise nicht möglich am Montag, Donnerstag, Freitag, Sonntag
Saison C 23.05.2026 - 06.06.2026
4
107,14 €
45,00 €
Anreise nicht möglich am Montag, Donnerstag, Freitag, Sonntag
Abreise nicht möglich am Montag, Donnerstag, Freitag, Sonntag
Saison D 06.06.2026 - 18.07.2026
4
117,14 €
45,00 €
Anreise nicht möglich am Montag, Donnerstag, Freitag, Sonntag
Abreise nicht möglich am Montag, Donnerstag, Freitag, Sonntag
Saison E 18.07.2026 - 12.09.2026
4
131,43 €
45,00 €
Anreise nicht möglich am Montag, Donnerstag, Freitag, Sonntag
Abreise nicht möglich am Montag, Donnerstag, Freitag, Sonntag
Saison D 12.09.2026 - 19.09.2026
4
117,14 €
45,00 €
Anreise nicht möglich am Montag, Donnerstag, Freitag, Sonntag
Abreise nicht möglich am Montag, Donnerstag, Freitag, Sonntag
Saison B 19.09.2026 - 10.10.2026
4
82,86 €
45,00 €
Anreise nicht möglich am Montag, Donnerstag, Freitag, Sonntag
Abreise nicht möglich am Montag, Donnerstag, Freitag, Sonntag
Saison A 10.10.2026 - 07.11.2026
4
68,57 €
45,00 €
Anreise nicht möglich am Montag, Donnerstag, Freitag, Sonntag
Abreise nicht möglich am Montag, Donnerstag, Freitag, Sonntag
Saison A 10.04.2027 - 22.05.2027
4
68,57 €
45,00 €
Anreise nicht möglich am Montag, Donnerstag, Freitag, Sonntag
Abreise nicht möglich am Montag, Donnerstag, Freitag, Sonntag
Saison C 22.05.2027 - 05.06.2027
4
107,14 €
45,00 €
Anreise nicht möglich am Montag, Donnerstag, Freitag, Sonntag
Abreise nicht möglich am Montag, Donnerstag, Freitag, Sonntag
Saison D 05.06.2027 - 17.07.2027
4
117,14 €
45,00 €
Anreise nicht möglich am Montag, Donnerstag, Freitag, Sonntag
Abreise nicht möglich am Montag, Donnerstag, Freitag, Sonntag
Saison E 17.07.2027 - 11.09.2027
4
131,43 €
45,00 €
Anreise nicht möglich am Montag, Donnerstag, Freitag, Sonntag
Abreise nicht möglich am Montag, Donnerstag, Freitag, Sonntag
Saison D 11.09.2027 - 18.09.2027
4
117,14 €
45,00 €
Anreise nicht möglich am Montag, Donnerstag, Freitag, Sonntag
Abreise nicht möglich am Montag, Donnerstag, Freitag, Sonntag
Saison B 18.09.2027 - 09.10.2027
4
82,86 €
45,00 €
Anreise nicht möglich am Montag, Donnerstag, Freitag, Sonntag
Abreise nicht möglich am Montag, Donnerstag, Freitag, Sonntag
Saison A 09.10.2027 - 06.11.2027
4
68,57 €
45,00 €
Anreise nicht möglich am Montag, Donnerstag, Freitag, Sonntag
Abreise nicht möglich am Montag, Donnerstag, Freitag, Sonntag
Zzgl. einer erstattbaren Kaution von einmalig 200,00 €.

Preisbeschreibung 2026

Preise pro Ferienwohnung inkl. Pool, Bettwäsche, Handtücher, Nebenkosten, Kinderhochstuhl, Waschmaschinenbenutzung

An- und Abreise sind an den Wochentagen Samstag, Dienstag und Mittwoch möglich.
Falls An- oder Abreise an einem Dienstag oder Mittwoch liegen, erhöht sich der gesamte Buchungspreis (ohne die Endreinigung) um 15 %. Falls Sie online gebucht haben, bitten wir Sie, anhand der Preistabelle nachzurechnen, weil das Buchungssystem den Aufpreis für abweichende An- und Abreisen manchmal falsch berechnet. Wir müssten den Preis in diesen Fällen nachträglich korrigieren.

Extra zu bezahlen:
Endreinigung: 45,00 €
Schlafsofa oder Zustellbett: 30,00 €/ Person/ Woche
Babybett: 30,00 €/ Woche
WLAN: 5,00 €/ Woche
Heizung (falls nötig): 1,00 €/ Stunde
Haustier: 30,00 €/ Woche (Schlafkörbchen bitte mitbringen)

Kaution: 200,00 €

Sprache: italienisch, englisch, deutsch
Haustier: auf Anfrage akzeptiert

Preisbeschreibung 2027

Preise pro Ferienwohnung inkl. Pool, Bettwäsche, Handtücher, Nebenkosten, Kinderhochstuhl, Waschmaschinenbenutzung

An- und Abreise sind an den Wochentagen Samstag, Dienstag und Mittwoch möglich.
Falls An- oder Abreise an einem Dienstag oder Mittwoch liegen, erhöht sich der gesamte Buchungspreis (ohne die Endreinigung) um 15 %. Falls Sie online gebucht haben, bitten wir Sie, anhand der Preistabelle nachzurechnen, weil das Buchungssystem den Aufpreis für abweichende An- und Abreisen manchmal falsch berechnet. Wir müssten den Preis in diesen Fällen nachträglich korrigieren.

Extra zu bezahlen:
Endreinigung: 45,00 €
Schlafsofa oder Zustellbett: 30,00 €/ Person/ Woche
Babybett: 30,00 €/ Woche
WLAN: 5,00 €/ Woche
Heizung (falls nötig): 1,00 €/ Stunde
Haustier: 30,00 €/ Woche (Schlafkörbchen bitte mitbringen)

Kaution: 200,00 €

Sprache: italienisch, englisch, deutsch
Haustier: auf Anfrage akzeptiert

Aufpreise für Zustellbetten und Schlafsofas

Schlafsofa für 2 Personen oder Zustellbetten möglich (30,00 €/ Person/ Woche)

Bitte teilen Sie uns mit, ob Sie Zustellbetten nutzen möchten.

Saisonbeschreibung

Mindestaufenthalt: 4 Nächte

An- und Abreise sind an den Wochentagen Samstag, Dienstag und Mittwoch möglich.
Falls An- oder Abreise an einem Dienstag oder Mittwoch liegen, erhöht sich der gesamte Buchungspreis (ohne die Endreinigung) um 15 %. Falls Sie online gebucht haben, bitten wir Sie, anhand der Preistabelle nachzurechnen, weil das Buchungssystem den Aufpreis für abweichende An- und Abreisen manchmal falsch berechnet. Wir müssten den Preis in diesen Fällen nachträglich korrigieren.

Öffnungszeiten des Pools: 12.04. - 08.11.
Bei schlechtem Wetter kann sich die Öffnungszeit des Pools verkürzen.

Die Preise für 2027 basieren auf den Preisen von 2026 und wurden von uns angegeben, damit Sie sich daran orientieren können. Die Preise für 2027 stehen zwar noch nicht abschließend fest.  Bei vielen Eigentümern können Sie zu den Preisen aus 2026 aber bereits buchen. Bei Interesse an der Unterkunft sprechen Sie uns doch bitte einfach an. Wir stehen immer gerne persönlich in Kontakt mit unseren Kunden.

Lizenznummer: IT048050B5AAZJEV4E

Optionale Leistungen

Babybett/ Person/ Nacht 3,29 €
4,29 € Pro Person / Pro Tag
Hochstuhl/ Person/ Nacht 0,00 €
0,00 € Pro Person / Pro Tag
Schlafsofa/ Person/ Nacht 4,29 €
4,29 € Pro Person / Pro Tag
Zustellbett/ Person/ Nacht 4,286 €
4,29 € Pro Person / Pro Tag

Preisrechner für Ihren Zeitraum:

2 Erwachsene 0 Kinder 0 Hunde
Erwachsene
-
+
Kinder
-
+
Hunde
-
+

Bitte geben Sie die Alter der weiteren Personen an

  • Das Anreisedatum muss gesetzt sein
  • Das Abreisedatum muss gesetzt sein
  • Das Anreisedatum darf nicht das Abreisedatum sein
  • Der gewählte Zeitraum liegt in der Vergangenheit
  • Diesen Zeitraum können Sie nicht buchen, da mindestens ein Tag außerhalb einer Saison liegt
  • Für den gewählten Zeitraum ist kein Preis verfügbar
  • Wenn die Buchung für den eingegebenen Zeitraum nicht möglich war, finden wir meist dennoch eine Lösung für Sie. Bitte kontaktieren Sie uns oder fragen die gewünschte Lösung unverbindlich an.

Rufen Sie uns bei Fragen zu Buchungen gerne unter 0841/4936508 an.

Angebote

12 % Rabatt für Aufenthalte im Reisezeitraum von 06.06. - 04.07.2026

12 % Rabatt für Aufenthalte im Reisezeitraum von 06.06. - 04.07.2026

06.06.2026 - 04.07.2026
  • Mindestübernachtungen
    7
  • Ermäßigung
    12 %
Keine Beschreibung
12 % Rabatt für Aufenthalte im Reisezeitraum von 23.05. - 30.05.2026

12 % Rabatt für Aufenthalte im Reisezeitraum von 23.05. - 30.05.2026

23.05.2026 - 30.05.2026
  • Mindestübernachtungen
    7
  • Ermäßigung
    12 %
Keine Beschreibung
24 % Rabatt für Aufenthalte im Reisezeitraum von 09.05. - 23.05.2026

24 % Rabatt für Aufenthalte im Reisezeitraum von 09.05. - 23.05.2026

09.05.2026 - 23.05.2026
  • Mindestübernachtungen
    7
  • Ermäßigung
    24 %
Keine Beschreibung
28 % Rabatt für Aufenthalte im Reisezeitraum von 18.04. - 09.05.2026

28 % Rabatt für Aufenthalte im Reisezeitraum von 18.04. - 09.05.2026

18.04.2026 - 09.05.2026
  • Mindestübernachtungen
    7
  • Ermäßigung
    28 %
Keine Beschreibung
32 % Rabatt für Aufenthalte im Reisezeitraum von 21.03. - 18.04.2026

32 % Rabatt für Aufenthalte im Reisezeitraum von 21.03. - 18.04.2026

21.03.2026 - 18.04.2026
  • Mindestübernachtungen
    7
  • Ermäßigung
    32 %
Keine Beschreibung

Kalender

März 2026
Mo Di Mi Do Fr Sa So
1
2 3 4 5 6 7 8
9 10 11 12 13 14 15
16 17 18 19 20 21 22
23 24 25 26 27 28 29
30 31
April 2026
Mo Di Mi Do Fr Sa So
1 2 3 4 5
6 7 8 9 10 11 12
13 14 15 16 17 18 19
20 21 22 23 24 25 26
27 28 29 30
Mai 2026
Mo Di Mi Do Fr Sa So
1 2 3
4 5 6 7 8 9 10
11 12 13 14 15 16 17
18 19 20 21 22 23 24
25 26 27 28 29 30 31
Juni 2026
Mo Di Mi Do Fr Sa So
1 2 3 4 5 6 7
8 9 10 11 12 13 14
15 16 17 18 19 20 21
22 23 24 25 26 27 28
29 30
  • Frei
  • Angebot
  • Buchung
  • Reservierung
Datum der letzten Aktualisierung des Belegungskalenders: 29.03.2026

Weitere Unterkünfte in diesem Landgut

  • Ferienwohnung Coppaio Fattoria Fondacio Toskana Weingut mit Pool bei Florenz Terrasse 1
%
  • 45
  • 2 (+1) Personen
  • 1 Schlafzimmer

Ferienwohnung Coppaio Bio-Weingut Fattoria Fondacio mit Pool in der Toskana

Ferienwohnung Italien, Toskana, Nord Toskana - Landesinneres (Florenz)

Gepflegtes Bio-Weingut mit Pool (14 m x 7 m) und weitem Blick über die malerische Toskana-Landschaft zwischen Florenz und Pisa, Hund erwünscht in der Ferienwohnung Coppaio mit eigener Terrasse

ab 68,57 €
pro ÜN / 2 Personen
Obligatorische Nebenkosten
Endreinigung 45,00 €
Kaution 200,00 €
Gesamt 245,00 €
Details
  • Ferienwohnung Tramontana Fattoria Fondacio Toskana Weingut mit Pool bei Florenz Terrasse 1
%
  • 45
  • 2 (+2) Personen
  • 1 Schlafzimmer

Ferienwohnung Tramontana Toskana Agriturismo Fattoria Fondacio mit Schwimmbad

Ferienwohnung Italien, Toskana, Nord Toskana - Landesinneres (Florenz)

Zauberhafte Toskana Ferienwohnung Tramontana mit einem großen Balkon zum Sonnenuntergang über der Hügellandschaft, ideal für einen Urlaub mit Hund auf dem Bio-Weingut mit Pool (14 m x 7 m)

ab 68,57 €
pro ÜN / 2 Personen
Obligatorische Nebenkosten
Endreinigung 45,00 €
Kaution 200,00 €
Gesamt 245,00 €
Details
  • Ferienwohnung Libeccio Fattoria Fondacio, Toskana Weingut mit Pool bei Florenz Terrasse 3
%
  • 45
  • 2 (+2) Personen
  • 1 Schlafzimmer

Ferienwohnung Libeccio toskanisches Weingut Fattoria Fondacio mit Panorama-Pool

Ferienwohnung Italien, Toskana, Nord Toskana - Landesinneres (Florenz)

Bildschöne Toskana Ferienwohnung Libeccio mit Logenplatz auf der Dachterrasse im Bio-Weingut mit Panorama-Pool (14 m x 7 m) bei Pisa und Florenz, ideal für ein Paar oder eine Familie mit Hund

ab 68,57 €
pro ÜN / 2 Personen
Obligatorische Nebenkosten
Endreinigung 45,00 €
Kaution 200,00 €
Gesamt 245,00 €
Details
  • Ferienwohnung Limonaia Fattoria Fondacio Toskana Weingut mit Pool bei Florenz Terrasse 1
%
  • 54
  • 2 (+2) Personen
  • 1 Schlafzimmer

Ferienwohnung Limonaia Toskana Weingut Fattoria Fondacio bei Florenz mit Pool

Ferienwohnung Italien, Toskana, Nord Toskana - Landesinneres (Florenz)

Malerisches Bio-Weingut in den Weinbergen zwischen Florenz und Pisa mit Panorama-Pool (14 m x 7 m), Ferienwohnung Limonaia mit Terrasse

ab 68,57 €
pro ÜN / 2 Personen
Obligatorische Nebenkosten
Endreinigung 45,00 €
Kaution 200,00 €
Gesamt 245,00 €
Details
  • Ferienwohnung Grottino Fattoria Fondacio, Toskana Weingut mit Pool bei Florenz Terrasse 1
%
  • 66
  • 4 (+1) Personen
  • 2 Schlafzimmer

Ferienwohnung Grottino Öko-Toskana-Weingut Fattoria Fondacio mit Pool

Ferienwohnung Italien, Toskana, Nord Toskana - Landesinneres (Florenz)

Toskana Urlaub in der zauberhaften Ferienwohnung Grottino im Obergeschoss des Bio-Weingutes Fattoria Fondacio mit Pool (14 m x 7 m), Sitzplatz auf der Dachterrasse

ab 91,43 €
pro ÜN / 2 Personen
Obligatorische Nebenkosten
Endreinigung 45,00 €
Kaution 200,00 €
Gesamt 245,00 €
Details